VILLA SCHIFFERHAUS IN KLEINHÜNINGEN

Vor einem halben Jahrhundert haben sich im Schifferhaus in Kleinhüningen die Seefahrer getroffen, bevor sie auf grosse Fahrt gingen. Aufgrund der geschichtsträchtigen Vergangenheit nicht verwunderlich, steht das historische Gebäude heute unter Denkmalschutz. Im Einklang mit der historischen Vergangenheit wird das Schifferhaus heute als Kindergarten und Tagesschule von der Privatschule Academia Sprach- und Lernzentrum Schweiz AG betrieben.

Renditeobjekt mit geschichtsträchtiger Vergangenheit

Die letzten Jahre waren geprägt von Aufbruch und neuen Entwicklungen, kurzum der Urbanisierung Kleinhüningens. Man erkannte, dass das „Dorf“ auch ein kindergerechtes Wohnumfeld bietet. Neuüberbauungen, Freizeiteinrichtungen und die Umgestaltung der Hafenanlage zu Wohnzwecken werden forciert. Industriegelände werden umgestaltet und Firmen aus dem Life-Science-Bereich angesiedelt. Das Stücki sowie die neuen Wohnungsüberbauungen, wie der Densa Park prägen heute das Bild. Ein interessantes Beispiel für den Wandel des Quartiers ist das Stücki Shoppingcenter, welches sich über 9 Jahre als grösstes Einkaufszentrum der Region zu behaupten versuchte. Ab 2023 eröffnet in den Hallen des ehemaligen Einkaufsparadieses mit dem Stücki Park ein innovativer Wirtschaftsstandort – ein Zentrum für Innovation, Erlebnis, Gesundheit, Gastronomie und Einkauf.

img

Grosszügig und Weitläufig

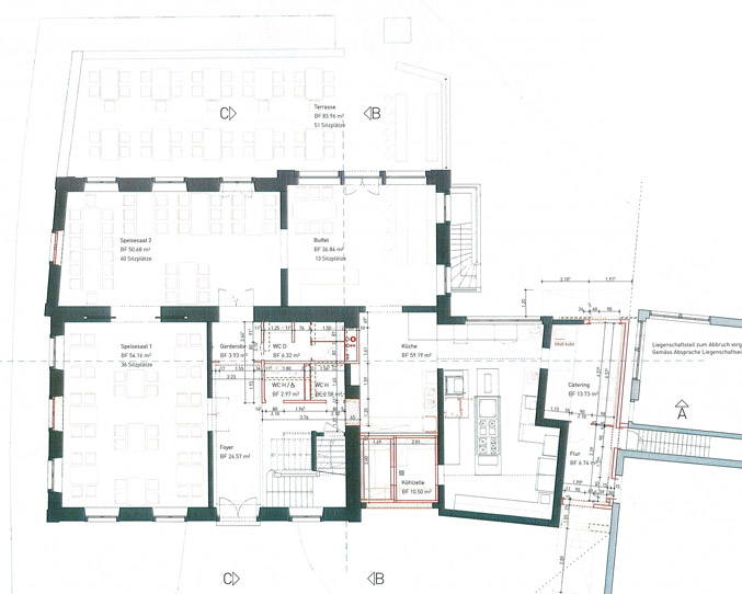
Erdgeschoss

Das Schifferhaus verfügt über eine Grundstücksfläche von 2‘571.0 m2. Durch den Vordereingang betritt man das einladende Foyer, von welchem die beiden grosszügigen Speisesäle, die Toiletten sowie die oberen Stockwerke zu erreichen sind. Anschliessend an den Speisesaal 2 befinden sich das Buffet mit Zugang zu der Terrasse und dem Garten sowie die Küche mit der Kühlzelle und einem Cateringraum.

Im Einklang mit der historischen Geschichte wird die Villa heute als Kindergarten und Tagesschule von der Privatschule Academia Sprach- und Lernzentrum Schweiz AG betrieben. Die Academia Sprach- und Lernzentrum Schweiz AG ist seit 2011 an diesem Standort und hat per 1. April 2017 ihr Angebot weiter ausgebaut und die ganze Liegenschaft gemietet. Die Mietdauer beträgt 20 Jahre, der Mietzins beträgt vom 15. April 2020 CHF 216‘000.00 und vom 16. April 2020 CHF 228‘000.00.


RaumGrösse
Foyer24.57 m2
Gerderobe3.93 m2
WC6.32 / 2.97 / 2.58 m2
Speisesaal 154.16 m2
Speisesaal 250.68 m2
Buffet36.84 m2
Küche59.19 m2
Kühlzelle10.50 m2
Catering13.73 m2
Flur6.74 m2
Terrasse83.96 m2

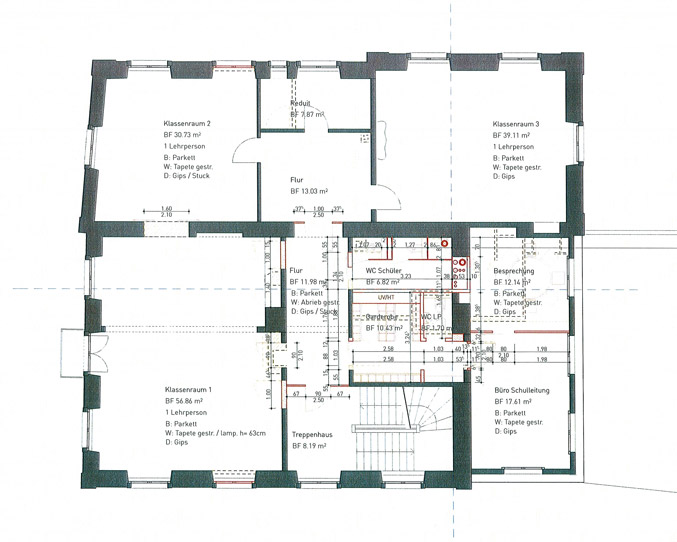
1. Etage

Die 1. Etage verfügt über drei grosszügige Klassenräume, das Büro der Schulleitung, einen Besprechungsraum, eine Garderobe, Toiletten sowie ein Reduit.

RaumGösse
Treppenhaus8.19 m2
Flur11.98 m2
Klassenraum 156.86 m2
Klassenraum 230.73 m2
Reduit7.87 m2
Flur13.03 m2
Klassenraum 339.11 m2
WC6.82 / 1.70 m2
Garderobe10.43 m2
Büro Schulleitung17.61 m2
Besprechungsraum12.14 m2

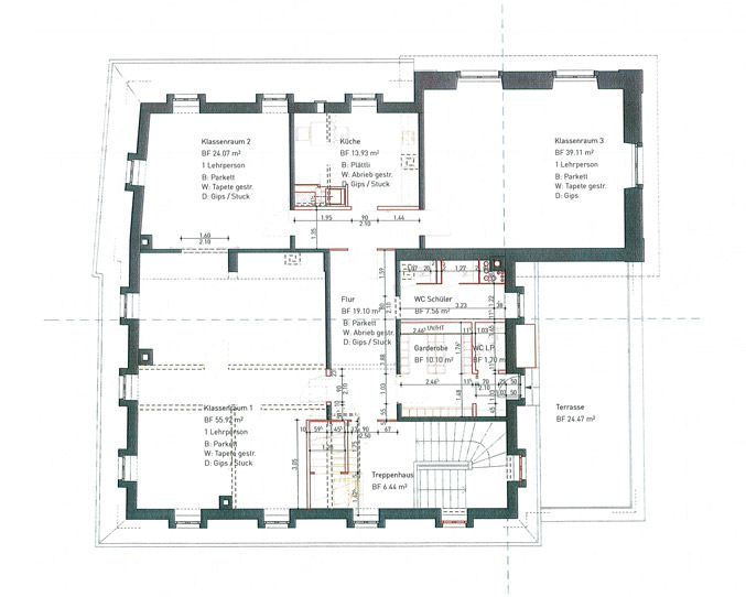
2. Etage

In der 2. Etage befinden sich drei weitere Klassenräume, eine Garderobe, Toiletten, eine Küche sowie eine einladende Terrasse.

RaumGrösse
Treppenhaus6.44 m2
Flur19.10 m2
Klassenraum 155.92 m2
Klassenraum 224.07 m2
Küche13.93 m2
Klassenraum 339.11 m2
WC7.56 / 1.70 m2
Garderobe10.10 m2
Terrasse24.47 m2

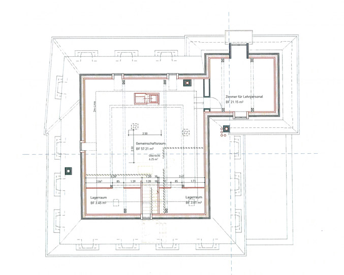
3. Etage

Die 3. und oberste Etage ist mit einem Gemeinschaftsraum und einem Lehrerzimmer ausgestattet.

RaumGrösse
Gemeinschaftsraum57.21 m2
Lagerraum rechts3.01 m2
Lagerraum links3.45 m2
Lehrerzimmer21.15 m2

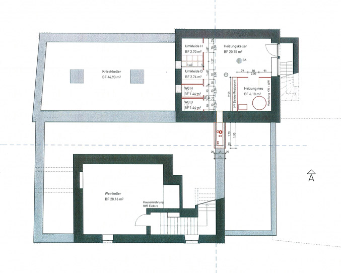
UNTERGESCHOSS

Im Keller sind zudem ein Technikraum mit Garderoben und Toiletten sowie ein Kriechkeller und ein Weinkeller vorhanden. Vor der Liegenschaft stehen Privatparkplätze zur Verfügung.

RaumGrösse
Weinkeller28.16 m2
Kriechkeller46.93 m2
Heizungskeller20.75 m2
Heizungsraum6.18 m2
WC Damen1.44 m2
WC Herren1.44 m2
Umkleide Damen2.74 m2
Umkleide Herren2.70 m2

Zahlungsmodalitäten

img

ZAHLEN UND FAKTEN

ObjektartHistorische Villa
VerkaufspreisVerkauft
AdresseBonergasse 75, 4057 Basel
Antritt VerkaufsobjektNach Vereinbarung
Grundstücksfläche2'571.0 m2
Baujahr1861/1943 und 2011 saniert
ParkplätzeJa, vor dem Haus

Interessiert?

Wir können Ihnen noch lange Vorteile aufzählen. Noch viel lieber würden wir uns mit Ihnen treffen, um Ihre Fragen zu beantworten, Ihnen alle Details zu erklären und Sie kennen zu lernen. Melden Sie sich bei uns für einen Termin, wir treffen Sie gerne auch zu Randzeiten oder am Wochenende.

Kontaktieren Sie uns!

Copyright Immosense AG 2025 | Impressum | Datenschutzerklärung