ÜBER DEN DÄCHERN VON BASEL

Die grosszügige 3.5-Zimmerwohnung besticht nicht nur durch zeitlos und zugleich moderne Architektur, sondern bietet auch allerlei Wohnkomfort. Auf 107 m2 erwarten Sie attraktiver und lichtdurchfluteter Wohnraum, welcher keine Wünsche offen lässt. Gebaut im Minergie-Standard verfügt die Wohnung in allen Zimmern über eine kontrollierte Lüftung sowie Bodenheizung.

Exklusive 3.5-Zimmerwohnung mit viel Wohnkomfort

Erfüllen Sie sich Ihren Wohntraum und geniessen Sie auf dem Areal den atemberaubenden Ausblick über die Stadt Basel. Denn hoch über der Stadt befindet sich unser Verkaufsobjekt im Skypark Allschwil.

Der Bus Nr. 64 befindet sich nur 200 Meter entfernt und bringt Sie in wenigen Minuten in Richtung Arlesheim Dorf oder auch in die Gegenrichtung nach Basel Bachgraben. Doch auch auf dem Areal des Skyparks erwartet Sie einiges. So sind grosszügige Grünflächen auf dem Areal vorhanden und auch ein Spielplatz für die Kleinen ist von den Bewohnern frei nutzbar.

img

Ruhige Lage

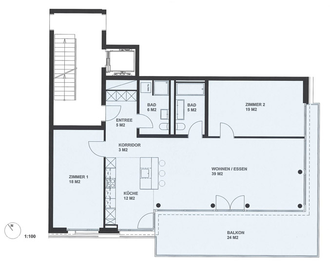
Grosszügige 3.5-Zimmerwohnung im 2. OG

Die offene Küche, in zeitlosem weiss gehalten, ist mit erstklassigen Geräten von V-Zug ausgestattet. Hier finden Sie vom Induktionsherd über die Geschirrspülmaschine bis zum Steamer viele nützliche Geräte, die Ihnen den Alltag erleichtern. Aber auch die Arbeitsinsel mit dem Lavabo und noch mehr zusätzlichem Stauraum und Arbeitsfläche, fügt sich optimal ins Gesamtbild ein.

Nur wenige Schritte trennen die Küche vom angrenzenden Wohn-/Essbereich. Mit Parkett ausgestattet, gelangen Sie vom geräumigen Wohnzimmer direkt zum Highlight der Wohnung - dem grossen Balkon - auf welchem Sie den Ausblick auf das begrünte Areal in vollen Zügen geniessen können.

Die beiden luxuriösen Badezimmer mit der klassischen Ausstattung führen den edlen Innenausbau der Wohnung weiter. Hier fehlt es Ihnen an Nichts, denn auch Ihre eigene Waschmaschine und Trockner der Marke Electrolux stehen im Gästebad für Sie bereit.

RaumGrösse
Entrée5.0 m2
Korridor3.0 m2
Zimmer 118.0 m2
Küche12.0 m2
Wohnen/Essen39.0 m2
Balkon24.0 m2
Zimmer 219.0 m2
Bad5.0 m2
Gästebad6.0 m2

Zusätzlicher Raum im Untergeschoss

Machen Sie sich keine Gedanken um die Parkplatzsuche. Denn hier erwartet Sie der für Sie reservierte Einstellplatz. Schnell und bequem gelangen Sie von Ihrem eigenen Parkpatz in der Einstellhalle in Ihre Wohnung.

Und wenn Sie zusätzlich zu der Wohnung noch mehr Raum benötigen, ist das hier auch kein Problem. Ebenfalls zu der Wohnung gehört ein Hobbyraum im Kellergeschoss. Darin finden Sie genügen Platz um Ihre kreativen oder praktischen Ideen umzusetzten und auch zu verstauen.

RaumBezeichnung
HobbyraumH.1.7.000
KellerabteilK 1.7.203

Zahlungsmodalitäten

img

ZAHLEN UND FAKTEN

Verkaufspreis WohnungVerkauft
AdresseOfenstrasse 38, 4123 Allschwil
Anzahl Zimmer3.5
Wohnfläche107.0 m2
Stockwerk2. OG
Baujahr2012
Zusätzliche RäumeEigenes Kellerabteil, Hobbyraum und Autoeinstellplatz
LiftJa

Interessiert?

Wir können Ihnen noch lange Vorteile aufzählen. Noch viel lieber würden wir uns mit Ihnen treffen, um Ihre Fragen zu beantworten, Ihnen alle Details zu erklären und Sie kennen zu lernen. Melden Sie sich bei uns für einen Termin, wir treffen Sie gerne auch zu Randzeiten oder am Wochenende.

Kontaktieren Sie uns!

Copyright Immosense AG 2025 | Impressum | Datenschutzerklärung