KLEINES MEHRFAMILIENHAUS AN GUTER LAGE

Zum Verkauf steht ein 1980 erbautes Mehrfamilienhaus am Grenzacherweg 150 in Riehen. Die charmante Liegenschaft erstreckt sich über eine Grundstücksfläche von 1‘292.0 m2, bestehend aus fünf grosszügigen Wohnungen, fünf vielseitig nutzbaren Bastelräumen, den Keller- sowie Allgemeinräumen inklusive Sauna und den fünf Parkplätzen in der Einstellhalle.

Charmant und Ruhig

In Riehen können Sie gemütlich im beschaulichen Dorfkern flanieren, in den idyllischen Parkanlagen entspannen, historische Bauten bestaunen oder kulturelle Besonderheiten erleben. Diese vielseitigen Möglichkeiten bedeuten Lebensqualität auf einem hohem Niveau und zufriedene Einwohnerinnen und Einwohner.

Verschiedenste Epochen haben in Riehen und ihren Bauwerken Spuren hinterlassen. Zusätzlich zu der markanten Dorfkirche, den historischen Bauernhäusern und gediegenen Landsitzen bekannter Basler Familien sind in jüngster Zeit moderne Wohn- und Geschäftsbauten entstanden. Es erwartet Sie ein spannender Mix im lebendigen Zentrum. Von Einkaufsläden über Handwerksbetriebe, Restaurants und Cafés finden Sie hier fast alles.

Durch die Nähe und ausgezeichnete Verkehrsanbindung an die Stadt Basel sowie der Grenzregion des Deutschen Landkreises Lörrach macht Riehen zum Bindeglied der beiden Kulturplätze. So können die Riehener vom umfangreichen Angebot der beiden Städte profitieren und alle Bedürfnisse in den Bereichen Arbeit, Bildung, Medizin, Kultur, Shopping, Freizeit und Sport optimal abdecken.

img

Grosszügig

3.5-ZIMMERWOHNUNG, 1. OG & 2. OG

Die Wohnungen zeichnen sich besonders durch den charmanten Innenausbau aus. So sorgt der Eichenparkett in den Wohn-und Essbereichen, dem Eingang sowie den Schlafräumen für eine wohnliche Atmosphäre. Funktional und komfortabel ausgestattet, ist der Ausbau der Wohnungen für Jung und Alt gleichermassen gelungen.

Mit dem Lift erreichen Sie einfach und bequem die Wohnungen sowie das Kellergeschoss. Der Eingangsbereich ist in allen Wohnungen gleich aufgebaut und vermittelt ein Gefühl von Weiträumigkeit. Vom Vorplatz mit dem praktischen Einbauschrank gelangen Sie in beinahe alle Zimmer und haben so eine wunderbare Übersicht.

RaumGrösse
Entrée10.82 m2
Bad/WC5.93 m2
WC/Dusche3.26 m2
Reduit4.10 m2
Küche9.09 m2
Essen12.80 m2
Wohnen23.67 m2
Zimmer 110.83 m2
Zimmer 214.52 m2
Terrasse8.56 m2

4.5-ZIMMERWOHNUNG, 1. OG & 2. OG

Der Ess- und Wohnbereich grenzt jeweils an die grösszügig und komfortabel eingerichtete Einbauküche. Direkt angrenzend befindet sich ein Reduit, welches sich hervorragend für die Lagerung von allerlei Gegenständen eignet. Aber auch die Bäder haben einiges an Platz zu bieten. So verfügt jede Wohnung über ein kleines Bad mit Dusche und WC sowie ein grosses Bad mit einer Badewanne, Toilette und ein Doppellavabo. Jede Wohnung verfügt zudem über einen Balkon, beziehungsweise einen Sitzplatz in den Erdgeschosswohnungen.

RaumGösse
Vorplatz8.79 m2
WC/Dusche3.22 m2
Reduit4.70 m2
Küche9.09 m2
Essen13.25 m2
Wohnen38.80 m2
Zimmer 19.98 m2
Zimmer 210.81 m2
Vorplatz 22.39 m2
Bad/WC4.59 m2
Zimmer 317.94 m2
Terrasse8.56 m2

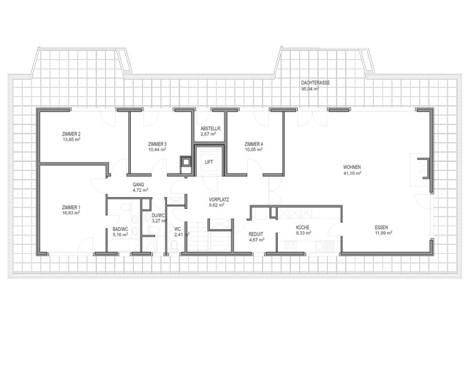
5.5-ZIMMER-ATTIKAWOHNUNG, 3. OG

Die Attikawohnung, welche sich über die gesamte 3. Etage erstreckt, hat noch ein paar Besonderheiten zu bieten. Ausgestattet mit einem direkten Liftzugang in die Wohnung, einem zusätzlichen separaten WC und einem Cheminée bietet diese Wohnung zusätzliche Annehmlichkeiten. Doch das ganz besondere Highlight bildet die umlaufende und rund 95.0 m2 grosse Dachterrasse.

RaumGrösse
Gang4.72 m2
WC/Dusche3.27 m2
Bad/WC5.16 m2
Zimmer 116.83 m2
Zimmer 213.85 m2
Zimmer 310.44 m2
Zimmer 410.05 m2
Wohnen41.19 m2
Essen11.99 m2
Küche8.33 m2
Reduit4.67 m2
Vorplatz9.62 m2
WC2.41 m2
Dachterrasse95.04. m2
Abstellraum2.67 m2

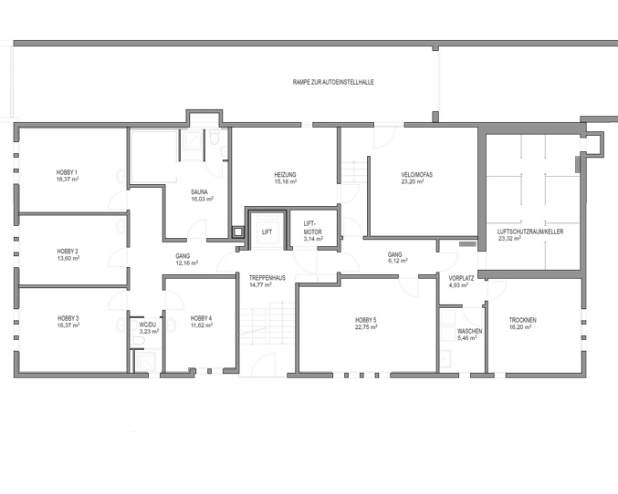
UNTERGESCHOSS

Zu jeder Wohnung gehört zudem ein eigenes Kellerabteil. Im Kellergeschoss stehen eine Waschküche, ein Trockenraum, eine Sauna mit Dusche, eine separate Toilette sowie ein Veloraum für alle Mieter zur Mitbenutzung zur Verfügung.

Die Bastelräume sind zwischen 12.0 m2 und 23.0 m2 gross und eignen sich für geschäftliche wie auch private Nutzung. Alle Mieter der Hobbyräume können die Toilette im Keller benutzen.

RaumGrösse
Hobbyraum 116.37 m2
Hobbyraum 213.60 m2
Hobbyraum 316.37 m2
Hobbyraum 411.62 m2
Hobbyraum 522.75 m2
WC/Dusche3.23 m2
Sauna mit WC/Dusche16.03 m2
Heizung15.18 m2
Liftmotor3.14 m2
Velo/Mofas23.20 m2
Waschen5.46 m2
Trocknen16.20 m2

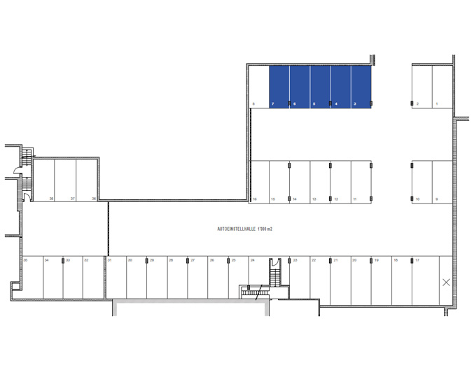
AUTOEINSTELLHALLE

Zu der Liegenschaft gehören 5 Autoeinstellplätze, welche über die Zufahrt am Grenzacherweg erreicht werden können.

Parkplatz
Nr. 3
Nr. 4
Nr. 5
Nr. 6
Nr. 7

Zahlungsmodalitäten

img

ZAHLEN UND FAKTEN

Verkaufspreis MehrfamilienhausVerkauft
AdresseGrenzacherweg 150, 4125 Riehen
Anzahl Wohnungen5
Anzahl Parkplätze5
Anzahl Bastelräume5
Stockwerke4
Baujahr1980
Grundstücksfläche1'292.0 m2
LiftJa

Interessiert?

Wir können Ihnen noch lange Vorteile aufzählen. Noch viel lieber würden wir uns mit Ihnen treffen, um Ihre Fragen zu beantworten, Ihnen alle Details zu erklären und Sie kennen zu lernen. Melden Sie sich bei uns für einen Termin, wir treffen Sie gerne auch zu Randzeiten oder am Wochenende.

Kontaktieren Sie uns!

Copyright Immosense AG 2025 | Impressum | Datenschutzerklärung